Treviolo – Quadrilocale
Descrizione
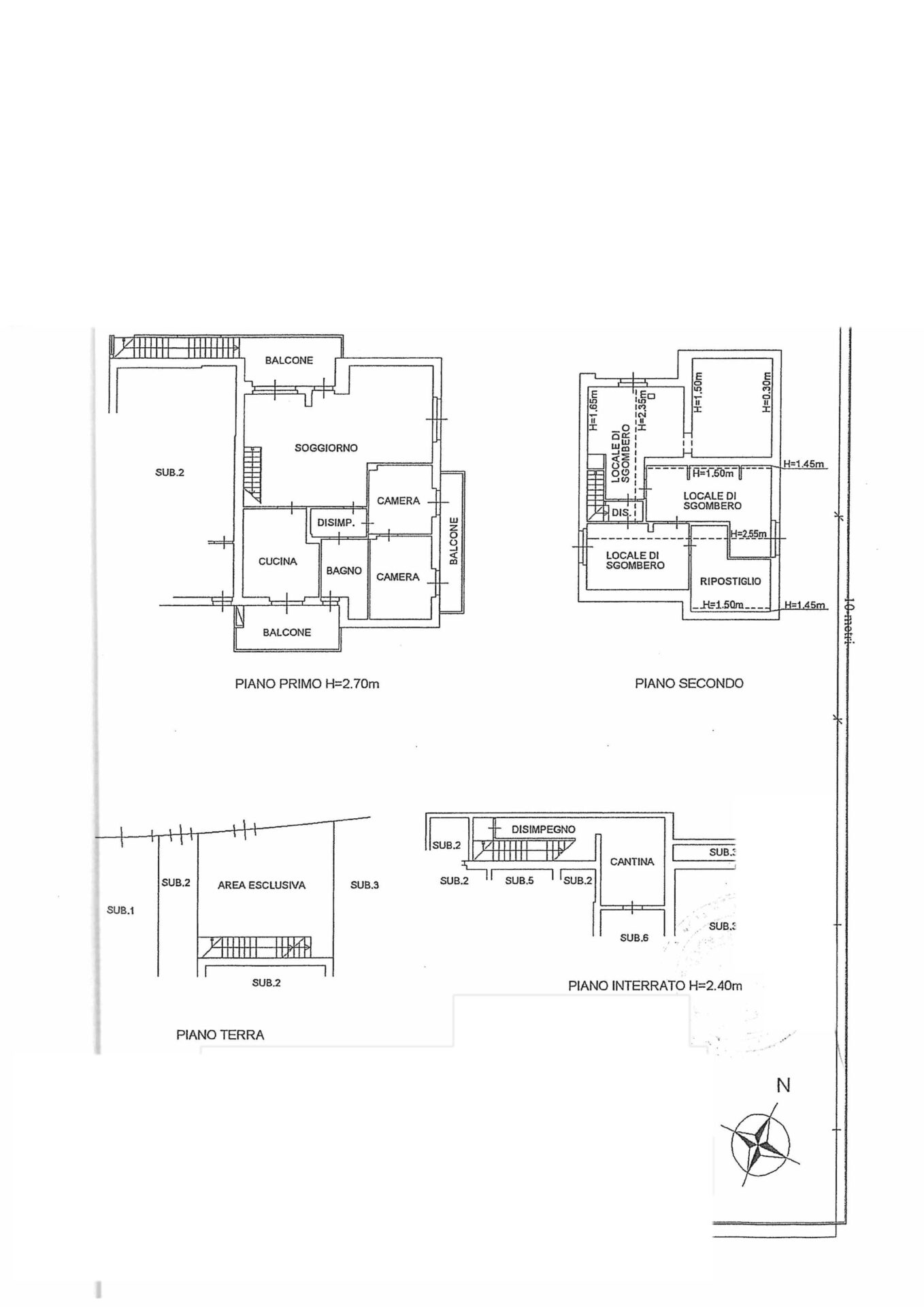
Treviolo, in zona tranquilla e immersa nel verde comoda ai servizi vendesi recente quadrilocale in villa di 210 mq in classe B.
Quadrilocale posto al primo piano da cui vi si accede dal piano terra tramite porzione di giardino (45 mq) e scala di proprietà esclusiva. L’appartamento è composto da: ingresso, grande e luminosa zona giorno, grande cucina abitabile, disimpegno, uno studio, una camera da letto, un grande bagno e due balconi di 25 mq totali. Una scala di collegamento interna porta al piano secondo mansardato dove troviamo altre due camere da letto (di cui una con una grande cabina armadio) e un ampio bagno con vasca e doccia. Al piano interrato grande cantina con zona lavanderia e box doppio.
Finiture: impianto di climatizazzione in tutta la casa, impianto fotovoltaico.
Consegna febbraio 2027.
Indirizzo
-
Nazione Italia
Panoramica
- ID Proprietà 13232
- Prezzo €523,000
- Categria Proprietà Quadrilocale Usato, Quadrilocali, Usato
- Bagni 2
- Anno di Costruzione 2013
- Superficie 210 m2
- Garagey 2
- Tipo Immobile quadrilocale in villa
- Tipo Costruzione piccola palazzina
- Piano primo-secondo
- Cucina abitabile
- Riscaldamento autonomo
- Classe energetica B
- Terrazzo (mq) 25
- Giardino (mq) 45
Contatto
Propietà Simili
Curno – Quadrilocale B3.1
€511,000Gmg Horizon Colleverde, a pochi passi da Bergamo, sorgerà u nuovo complesso residenziale immerso in un parco. Un progetto ambizioso concepito per offrire ai suoi residenti un’ esperienza abitativa di altissimo livello con finiture di pregio caratterizzata da massimi standard qualitativi e all’insegna di una vita green. Gmg Horizon Colleverde propone delle soluzioni abitative perfette […]
In elegante contesto residenziale di nuova costruzione, situato in zona strategica e comoda per il raggiungimento delle principali arterie stradali, proponiamo n.8 esclusivi appartamenti caratterizzati da Ampi spazi abitativi, finiture moderne e Grande luminosità. Sono disponibili soluzioni al piano terra con ampi Giardini privati ideali per famiglie e per chi desidera vivere all’aperto, oppure appartamenti […]
Torre de Roveri – Attico n. 8
€521,000TORRE DE’ ROVERI – ATTICO N. 8 In elegante contesto residenziale di nuova costruzione, situato in zona strategica e comoda per il raggiungimento delle principali arterie stradali, proponiamo n. 8 esclusivi appartamenti caratterizzati da Ampi spazi abitativi, finiture moderne e Grande luminosità. Sono disponibili soluzioni al piano terra con ampi Giardini privati ideali per famiglie […]