Bonate Sopra – Villa A
Descrizione
BONATE SOPRA – VILLA A
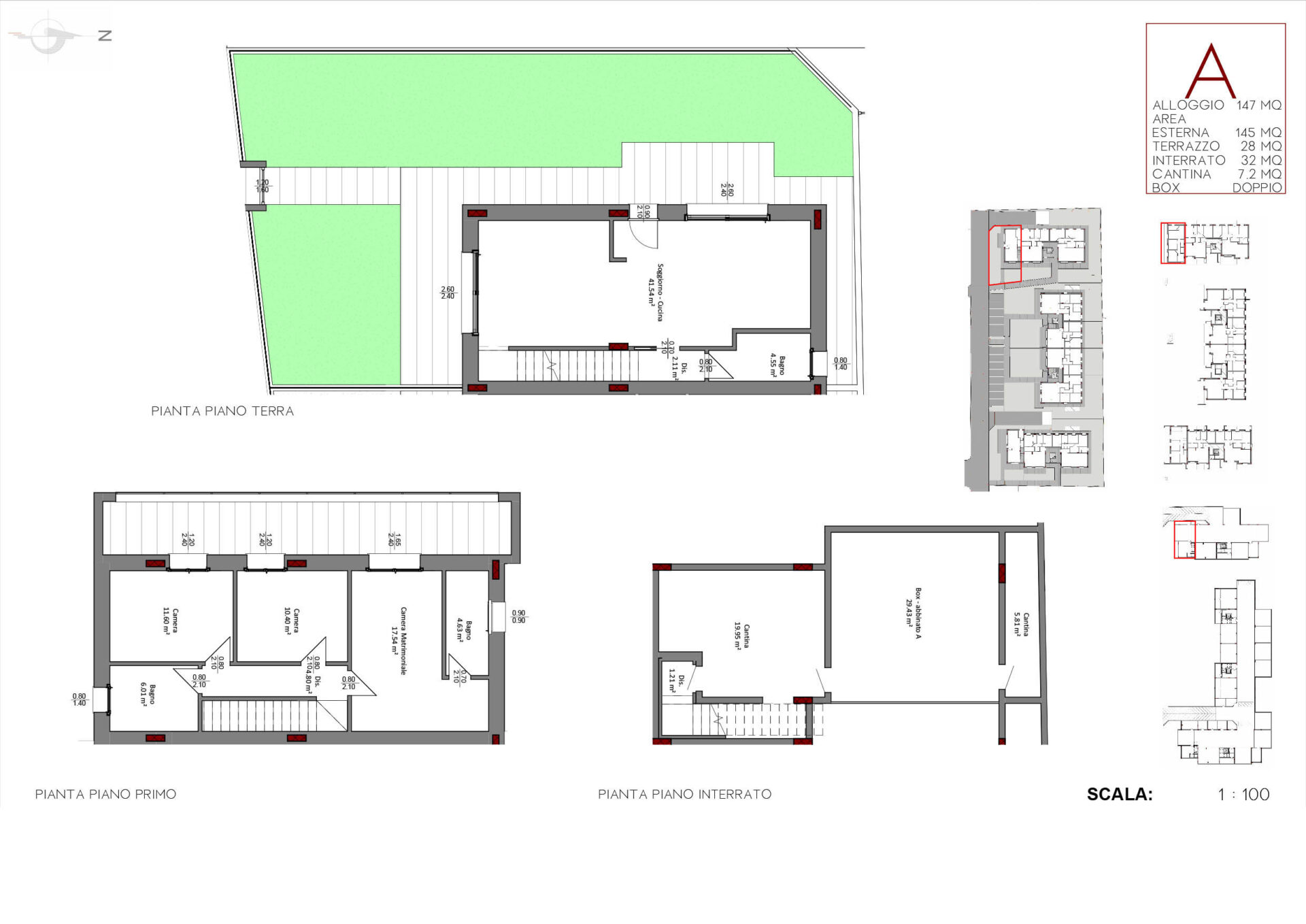
Bonate Sopra, in Via Gorizia, prossima realizzazione di un complesso residenziale denominato “LIGHT RESIDENCE” non in classe A bensì in classe A4 con diverse soluzioni abitative per incontrare qualunque vostra esigenza! La parola chiave per descrivere questa nuovo residence? SPAZIO! Lo spazio che, come si può constatare dalle planimetrie, caratterizza tutte le nostre soluzioni. La Villa A è dotata di ingresso indipendente sia pedonale che tramite la grande autorimessa doppia in larghezza ed è composto al piano terra da una grande zona giorno con cucina openspace, un bagno di servizio, al piano superiore n.3 grandi camere da letto e n.2 bagni, la camera matrimoniale è dotata di grande cabina armadio e bagno in camera. Completa una comoda area esterna di 150mq. Chiamaci per informazioni o per fissare un appuntamento senza impegno! 035.693020
Indirizzo
-
Nazione Italia
-
Province/State Bergamo
-
City/Town Bonate Sopra
Panoramica
- ID Proprietà 11019
- Prezzo €505,000
- Categria Proprietà Bonate Sopra - Light Residence, Cantieri, Ville
- Rooms 3
- Bagni 2
- Anno di Costruzione 2026
- Superficie 190 m2
- Etichetta VILLA
- Garagey 2
Contatto
Propietà Simili
TREVIOLO – QUADRILOCALE IN VILLA
€665,000Treviolo in zona residenziale adiacente al parco Zanchi, in edificio di recente costruzione, ampio quadrilocale posto all’ultimo piano il quale dispone di ampissimi terrazzi soggiornabili. Piano primo: disimpegno, ascensore, ampia cucina, grande e luminosa zona living più pranzo, bagno, ampie vetrate affaccianti su terrazzo di grandi dimensioni e completamente soggiornabile, al piano superiore ed ultimo, […]
Curno – Quadrilocale B3.1
€501,000Gmg Horizon Colleverde, a pochi passi da Bergamo, sorgerà u nuovo complesso residenziale immerso in un parco. Un progetto ambizioso concepito per offrire ai suoi residenti un’ esperienza abitativa di altissimo livello con finiture di pregio caratterizzata da massimi standard qualitativi e all’insegna di una vita green. Gmg Horizon Colleverde propone delle soluzioni abitative perfette […]
In elegante contesto residenziale di nuova costruzione, situato in zona strategica e comoda per il raggiungimento delle principali arterie stradali, proponiamo n.8 esclusivi appartamenti caratterizzati da Ampi spazi abitativi, finiture moderne e Grande luminosità. Sono disponibili soluzioni al piano terra con ampi Giardini privati ideali per famiglie e per chi desidera vivere all’aperto, oppure appartamenti […]