Bonate Sopra – Trilocale C1 Piano Terra
Descrizione
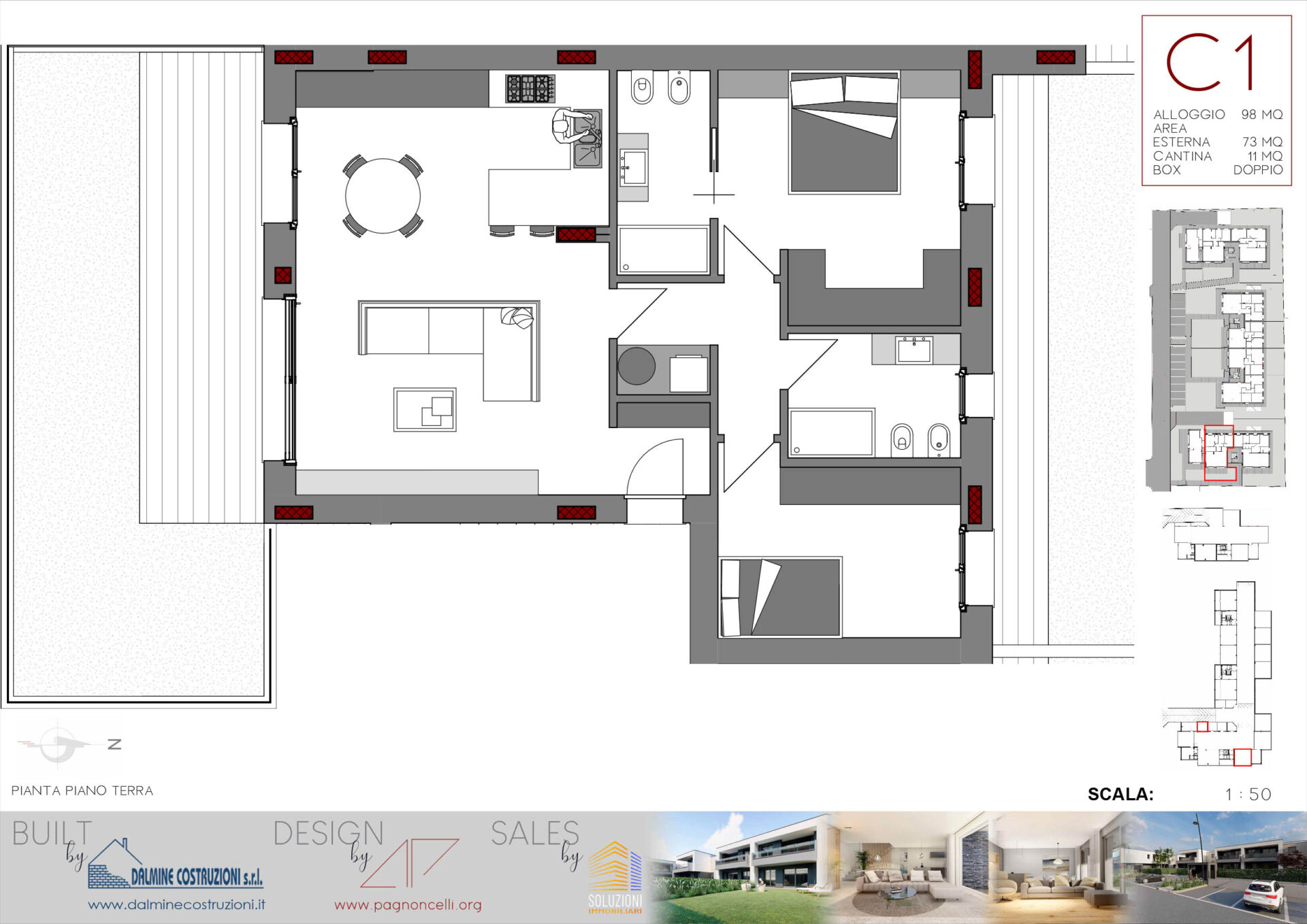
Bonate Sopra, in Via Gorizia, prossima realizzazione di un complesso residenziale denominato “LIGHT RESIDENCE” non in classe A bensì in classe A4 con diverse soluzioni abitative per incontrare qualunque vostra esigenza! La parola chiave per descrivere questa nuovo residence? SPAZIO! Lo spazio che, come si può constatare dalle planimetrie, caratterizza tutte le nostre soluzioni. L’appartamento C1 è un grande TRILOCALE di 100 mq con giardino di 75 mq ed è composto da una zona giorno con cucina openspace, un armadio lavanderia , n.2 bagni, n.2 ampie camere da letto, Box doppio in larghezza e cantina compreso nel prezzo! Finiture principali: -Isolamento a cappotto -Serramenti in PVC a sei camere con doppio vetro -Predisposizione per zanzariera -Avvolgibili motorizzati in alluminio di tipo pesante ideali per evitare danni causati da grandine -Predisposizione per tende da sole esterne -Predisposizione sistema di allarme anti intrusione -Impianto a pompa di calore coadiuvato all’impianto fotovoltaico -Impianto VMC completo -Riscaldamento a pavimento -Predisposizione impianto di raffrescamento -Predisposizione domotica con pannello da 72 moduli -Porta blindata -Impianto di video citofono completo -Sezionale motorizzato -Box pitturato Chiamaci per informazioni o per fissare un appuntamento senza impegno! 035.693020
Indirizzo
-
Nazione Italia
-
Province/State Bergamo
-
City/Town Bonate Sopra
Panoramica
- ID Proprietà 1212
- Prezzo €305,000
- Categria Proprietà Bonate Sopra - Light Residence, Cantieri, Trilocale
- Rooms 2
- Bagni 2
- Anno di Costruzione 2026
- Superficie 98 m2
- Etichetta PIANO TERRA
- Garagey 2
Contatto
Propietà Simili
Curno – Quadrilocale B3.1
€501,000Gmg Horizon Colleverde, a pochi passi da Bergamo, sorgerà u nuovo complesso residenziale immerso in un parco. Un progetto ambizioso concepito per offrire ai suoi residenti un’ esperienza abitativa di altissimo livello con finiture di pregio caratterizzata da massimi standard qualitativi e all’insegna di una vita green. Gmg Horizon Colleverde propone delle soluzioni abitative perfette […]
In elegante contesto residenziale di nuova costruzione, situato in zona strategica e comoda per il raggiungimento delle principali arterie stradali, proponiamo n.8 esclusivi appartamenti caratterizzati da Ampi spazi abitativi, finiture moderne e Grande luminosità. Sono disponibili soluzioni al piano terra con ampi Giardini privati ideali per famiglie e per chi desidera vivere all’aperto, oppure appartamenti […]
In elegante contesto residenziale di nuova costruzione, situato in zona strategica e comoda per il raggiungimento delle principali arterie stradali, proponiamo n.8 esclusivi appartamenti caratterizzati da Ampi spazi abitativi, finiture moderne e Grande luminosità. Sono disponibili soluzioni al piano terra con ampi Giardini privati ideali per famiglie e per chi desidera vivere all’aperto, oppure appartamenti […]